пн-пт 9:30-18:00, сб-вск - выходной
+375447940409
дача РЯБИНКА, 3-я Садовая улица
Цена объекта:
26 000 $
73 653 BYN
ваш агент
Ольга Бартош
описание

Продается уютная-благоустроенная дача в СТ “РЯБИНКА”, уч 17, Мясотской с/с, Молодечненский р-н. 


Садовый участок расположен в 15 км. от г. Молодечно и 55 км от МКАД, до ближайшей ж/д станции "Татарщизна" - 15 минут пешком, 1,5 км. 


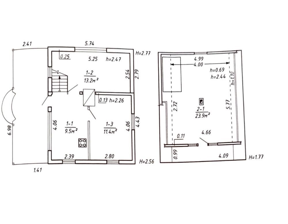
Дом двухуровневый, деревянный, утеплен и обшит сайдингом, пристройка блочная. Материал крыши - мягкая кровля. В доме три просторные жилые комнаты, кухня и уютная терасса. Общая площадь дома 58,0 м.кв. 


В доме установлены качественные экологичные деревянные окна, в жилых комнатах и на кухне на полу дерево, на терассе плитка, отопление печное (печь новая), водоснабжение сезонное, электричество. Дом продаётся с мебелью. 


Садовый дом - это не только жилое помещение. На участке площадью 5 соток организован настоящий райский уголок для отдыха всей семьи. 


На участке расположились блочные сарай, душ с бойлером для подогрева воды, санитарный узел, дровница, зона барбекю, сад с плодовыми деревьями и кустарниками, множество декоративных растений, небольшой огород, дорожки и зона отдыха вымощены тротуарной плиткой. Участок огорожен металлическим забором, боковые стороны сеткой-рабицей, установлены распашные ворота и аркой обвитой виноградом. 


Участок расположен в лесном массиве. Есть свой стационарный магазин. 


Работаем со всеми видами оплаты. 


Бесплатные консультации, помощь в продаже Вашей недвижимости.

договор
Договор № 28/1 от 30.01.2026
ООО «Агентство недвижимости «Уласны дах»
УНП 193467775
Лицензия Министерства юстиции Республики Беларусь № 02240/402 от 22.10.2020 г.
Характеристики и преимущества
Площадь по СНБ/общаяПлощадь по СНБ/общая: -/58
Жилая площадьЖилая площадь: 48.5
Площадь кухниПлощадь кухни: 9.5
Год постройки/кап.ремонтаГод постройки/кап.ремонта: 2012/-
Выделенное парковочное местоВыделенное парковочное место: нет
Участок, сотокУчасток, соток: 5
Статус земли: частная собственность
Участок принадлежит садовому товариществуУчасток принадлежит садовому товариществу: да
Процент готовностиПроцент готовности: 100
Материал стенМатериал стен: Силикатные блоки (-)
Материал крышиМатериал крыши: ондулин
ВодаВода: сезонная (-)
КанализацияКанализация: есть
ЭлектроснабжениеЭлектроснабжение: есть
ОтоплениеОтопление: печное
ГазГаз: есть
Условия продажи: чистая продажа
Возможен торг: Да
Возможна продажа частямиВозможна продажа частями: Нет
Валюта цены: USD
Продавайте с нами квартиры
по выгодной цене
Этот сайт использует файлы cookie, чтобы сделать его максимально удобным для Вас. Нажимая «Принять все», Вы соглашаетесь на использование нами файлов cookie. При нажатии «Отклонить все» Вы отказываетесь от использования аналитических файлов cookie. С Политикой обработки файлов cookie можно ознакомиться по ссылке.