пн-пт 9:30-18:00, сб-вск - выходной
+375447940409
3-комнатная квартира Чисть, Садовая улица, 4
Цена объекта:
49 500 $
140 224 BYN
Цена за м²:
638 $
1 807 BYN
ваш агент
Ольга Бартош
описание

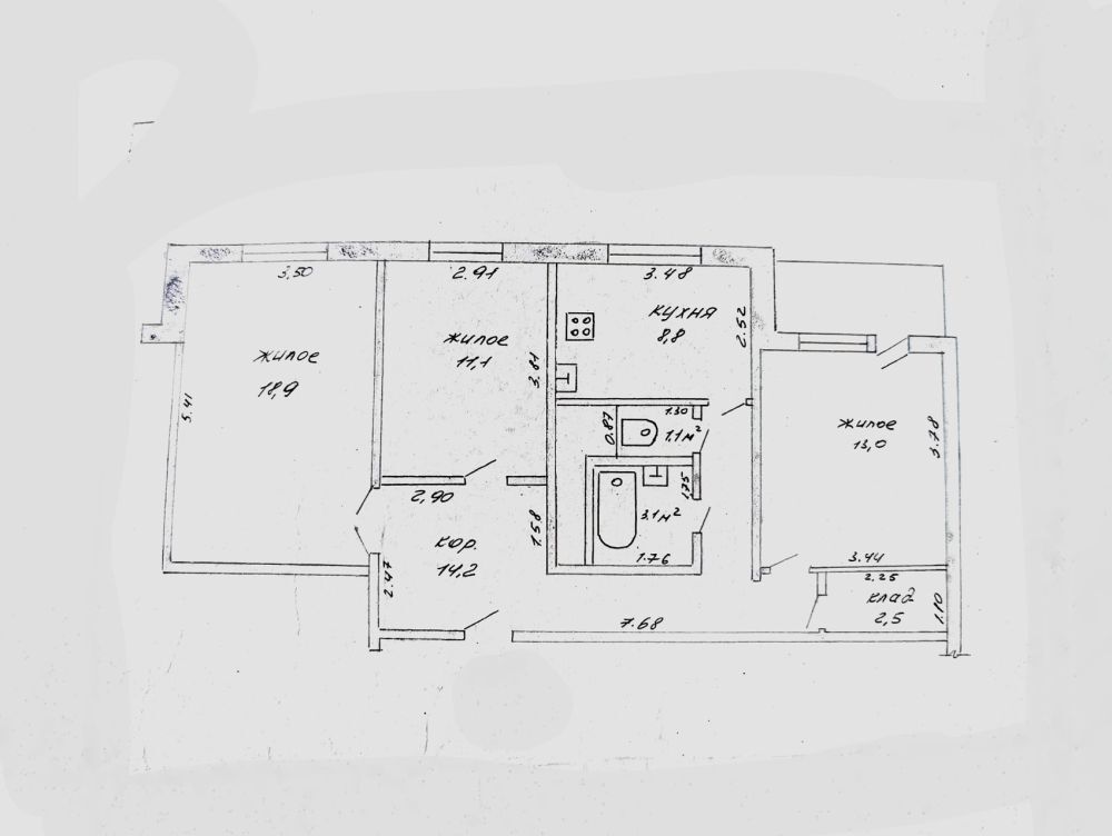
Продается трехкомнатная квартира. Возможна продажа в кредит или с использованием средств семейного капитала. Адрес: п. Чисть, ул. Садовая, д. 4.  Квартира расположена на втором этаже двухэтажного, панельного дома, дом утеплен и оштукатурен.  Общая площадь квартиры составляет 72,7 м.кв., жилая 43 м.кв. кухня 8,8 м.кв.  Планировка включает три жилые комнаты 18,9 м.кв, 13,0 и  11,1 м.кв., раздельный санитарный узел,  из  спальни есть выход на застекленную лоджию. В квартире на полу в санузлах плитка  в жилых комнатах на ламинат. Дом 1991  года постройки. Приветливые и дружные соседи. Также имеется подвальное помещение. Благоустроенная придомовая территория: парковочные места, рядом зелёная зона. 
Район - тихий и спокойный, с развитой инфраструктурой, в шаговой доступности,  продуктовые магазины, парикмахерская, банк,  детский сад, больница. Рядом остановка общественного транспорта, откуда Вы с легкостью доберетесь до нужной части посёлка. Эта квартира станет отличным выбором для семей с детьми.  Мы с радостью покажем Вам квартиру и сделаем Вас её  счастливыми хозяевами!
Работаем со всеми видами оплаты (кредит, субсидия, материнский капитал).
Бесплатные консультации, помощь в продаже Вашей недвижимости

.
договор
Договор № 44/1 от 11.01.2026
ООО «Агентство недвижимости «Уласны дах»
УНП 193467775
Лицензия Министерства юстиции Республики Беларусь № 02240/402 от 22.10.2020 г.
Характеристики и преимущества
Число комнатЧисло комнат: 3-комнатная квартира
Раздельных комнатРаздельных комнат: 3
ЭтажЭтаж: 2/2
Тип домаТип дома: панельный
Площадь по СНБ/общаяПлощадь по СНБ/общая: 77.6/72.7
Жилая площадьЖилая площадь: 43
Площадь кухниПлощадь кухни: 8.8
Площадь балконовПлощадь балконов: 4.9
СанузелСанузел: раздельный
ПолыПолы: ламинированные
БалконБалкон: лоджия застекленная
ТелефонТелефон: есть
ПланировкаПланировка: чешский проект
СостояниеСостояние: Вторичное жилье
Окна выходятОкна выходят: На улицу
Год постройки/кап.ремонтаГод постройки/кап.ремонта: 1991/-
Выделенное парковочное местоВыделенное парковочное место: нет
Условия продажи: чистая продажа
Возможен торг: Да
Возможна продажа частямиВозможна продажа частями: Нет
Валюта цены: USD
Продавайте с нами квартиры
по выгодной цене
Этот сайт использует файлы cookie, чтобы сделать его максимально удобным для Вас. Нажимая «Принять все», Вы соглашаетесь на использование нами файлов cookie. При нажатии «Отклонить все» Вы отказываетесь от использования аналитических файлов cookie. С Политикой обработки файлов cookie можно ознакомиться по ссылке.