пн-пт 9:30-18:00, сб-вск - выходной
+375447940409
Здание Молодечно, Шаранговича, 20/1
Цена объекта:
45 000 $
127 476 BYN
ваш агент
Ольга Бартош
описание

Здание магазина - административное здание, беспроигрышная инвестиция. 


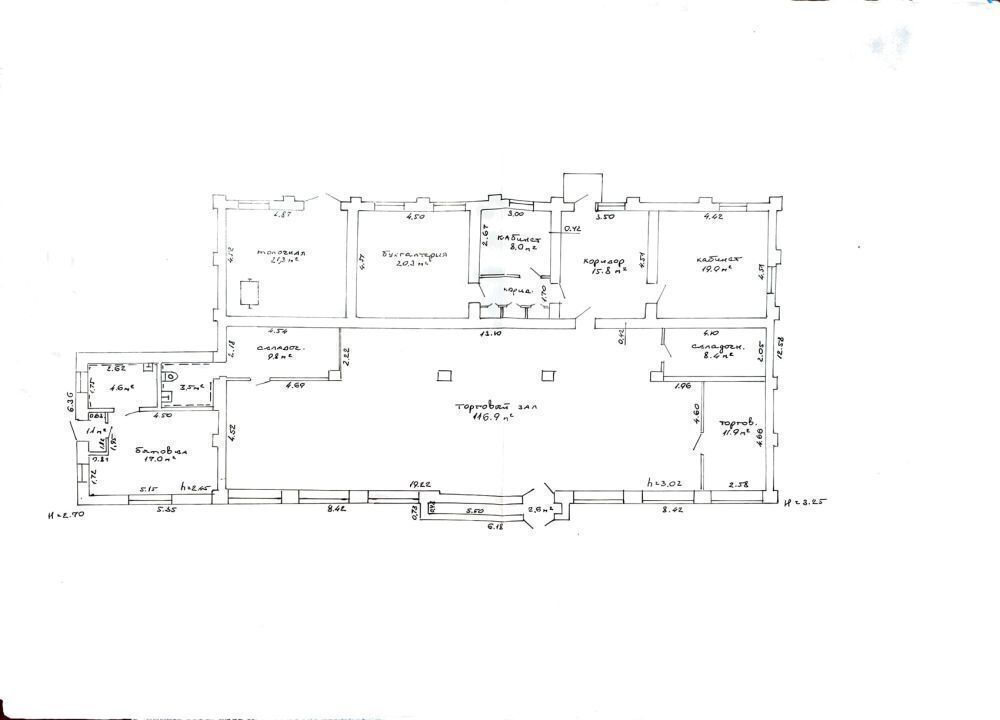
Продается здание общей площадью 266,1 м.кв., расположено по адресу г. Молодечно, ул. Шаранговича, 20. 


Здание из кирпича, оштукатурено и покрашено, кровля металлическая, полы бетонные, здание состоит из множества подсобных и административных помещений и большого торгового зала площадью 118,9 м.кв, высотой 2,42 м. 


Здание электрифицировано, вода центральная, отопление газовое. 


Участок площадью ~ 0,10 га. В аренде. 


Хорошая планировка зданий позволит не только правильно использовать необходимые площади но и без затруднения сдавать в аренду свободные площади зданий.


Работаем со всеми видами оплаты. Возможна оплата в несколько этапов.

.
договор
Договор № 78/1 от 04.02.2026
ООО «Агентство недвижимости «Уласны дах»
УНП 193467775
Лицензия Министерства юстиции Республики Беларусь № 02240/402 от 22.10.2020 г.
Характеристики и преимущества
ЭтажЭтаж: 1/1
Год постройки/кап.ремонтаГод постройки/кап.ремонта: 1958/-
Выделенное парковочное местоВыделенное парковочное место: нет
ЭлектроснабжениеЭлектроснабжение: есть
Условия продажи: чистая продажа
Возможен торг: Нет
Раздел: Торговая
Другие возможные виды использования объекта: Магазин, Аптека, Торговое место, Офис, Помещение, Офис+Склад, Здание, Склад, Склад+офис, Сфера услуг, Парикмахерская, Кафе, Бар
Находится: Отдельное здание
Площадь земельного участкаПлощадь земельного участка: 10
Площадь помещений минимальнаяПлощадь помещений минимальная: 4.5
Площадь помещений максимальнаяПлощадь помещений максимальная: 118.9
Подведенная электрическая мощность, кВтПодведенная электрическая мощность, кВт: 380
Количество отдельных помещенийКоличество отдельных помещений: 12
Естественное освещениеЕстественное освещение: есть
Состояние домаСостояние дома: удовлетворительный ремонт
Возможна продажа частямиВозможна продажа частями: Нет
Цена продажи всего объекта: 45000
Валюта цены: USD
НДС: НДС включен
Продавайте с нами квартиры
по выгодной цене
Этот сайт использует файлы cookie, чтобы сделать его максимально удобным для Вас. Нажимая «Принять все», Вы соглашаетесь на использование нами файлов cookie. При нажатии «Отклонить все» Вы отказываетесь от использования аналитических файлов cookie. С Политикой обработки файлов cookie можно ознакомиться по ссылке.