пн-пт 9:30-18:00, сб-вск - выходной
+375447940409
Магазин Карповичи, Минская улица, 4
Цена объекта:
95 000 $
269 116 BYN
ваш агент
Ольга Бартош
описание

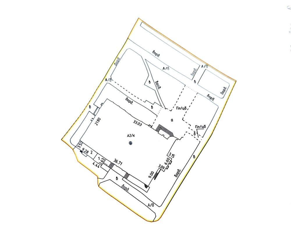
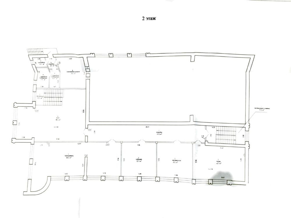
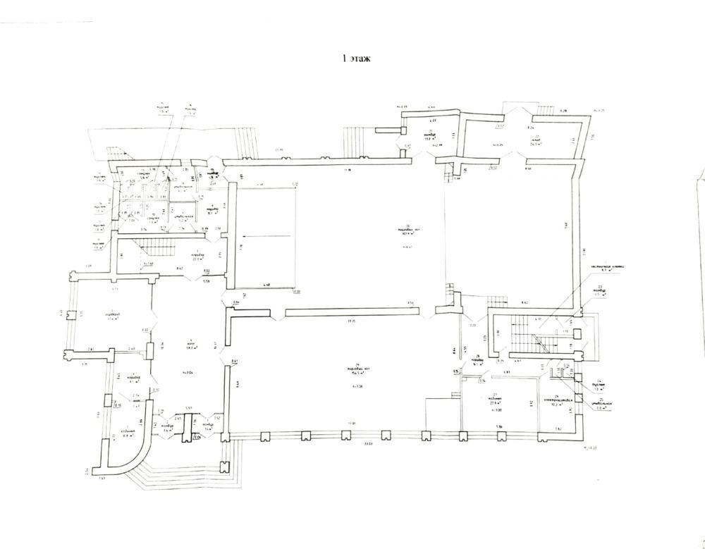
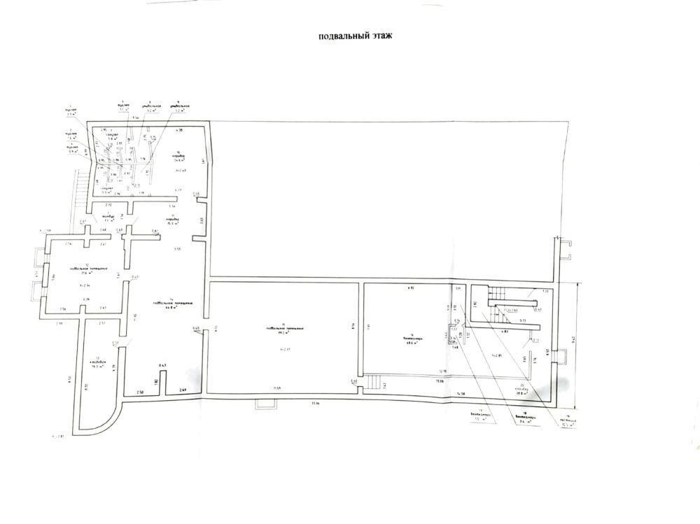
Коммерческое здание (магазин) общей площадью 1558,3 м2. Год постройки 1988. 


Адрес: Вилейский р-н, д. Карповичи, ул. Минская.


Здание двухуровневое:


подвальный этаж площадью 484 м2, первый и второй этажи общая площадь 1140,4 м2, 


первый этаж высота потолков 3,06 м.;


второй этаж высота потолков 2,98 м.


Здание очень грамотно оборудовано несколькими автономными входами с разных сторон здания, что позволит в дальнейшем сдавать его частями и обеспечить арендаторов беспрепятственным доступом. 


На каждый этаж выведены всё необходимые комуникации, центральное водоснабжение и канализация, отопление автономное (кательная), соблюдены требования пожарной безопасности. Созданы оптимальные условия для использования здания под любое назначение. 


Материал стен - кирпич, перегородки - кирпич, блоки газосиликатные, пол бетонная стяжка (плиты перекрытия), стены оштукатурены, кровля - рулонные кровельные материалы, оборудован навес подъездные пути для разгрузки товара и материалов.


Вокруг здания положена тротуарная плитка, выполнено благоустройство территорий. 


Растояние от МКАД 58 км., от г. Молодечно 35 км. 


Возможна продажа в кредит либо оплата в несколько этапов. Покупатель услуги агентства не оплачивает. 


Бесплатные консультации, помощь в продаже Вашей недвижимости.

договор
Договор № 120/1 от 18.02.2026
ООО «Агентство недвижимости «Уласны дах»
УНП 193467775
Лицензия Министерства юстиции Республики Беларусь № 02240/402 от 22.10.2020 г.
Характеристики и преимущества
ЭтажЭтаж: 2/2
Год постройки/кап.ремонтаГод постройки/кап.ремонта: 1988/-
Выделенное парковочное местоВыделенное парковочное место: нет
ЭлектроснабжениеЭлектроснабжение: есть
Условия продажи: чистая продажа
Возможен торг: Нет
Раздел: Торговая
Другие возможные виды использования объекта: Магазин, Торговый центр, Офис, Помещение, Офис+Склад, Здание, Склад+офис, Производство, Сфера услуг, Кафе
Находится: Отдельное здание
Площадь земельного участкаПлощадь земельного участка: 37.28
Естественное освещениеЕстественное освещение: есть
Состояние домаСостояние дома: нормальный ремонт
Возможна продажа частямиВозможна продажа частями: Нет
Валюта цены: USD
НДС: НДС нет (0%)
Продавайте с нами квартиры
по выгодной цене
Этот сайт использует файлы cookie, чтобы сделать его максимально удобным для Вас. Нажимая «Принять все», Вы соглашаетесь на использование нами файлов cookie. При нажатии «Отклонить все» Вы отказываетесь от использования аналитических файлов cookie. С Политикой обработки файлов cookie можно ознакомиться по ссылке.