пн-пт 9:30-18:00, сб-вск - выходной
+375447940409
дом Боровляны, Центральный переулок
Цена объекта:
1 200 $
3 399 BYN
ваш агент
Илона Петрова
описание

☘️Сдаем просторный дом с садом и террасой в Боровлянах!


Современный жилой дом, где каждая деталь продумана для удобства и комфорта.


В трех уровнях: два жилых этажа плюс подвал.


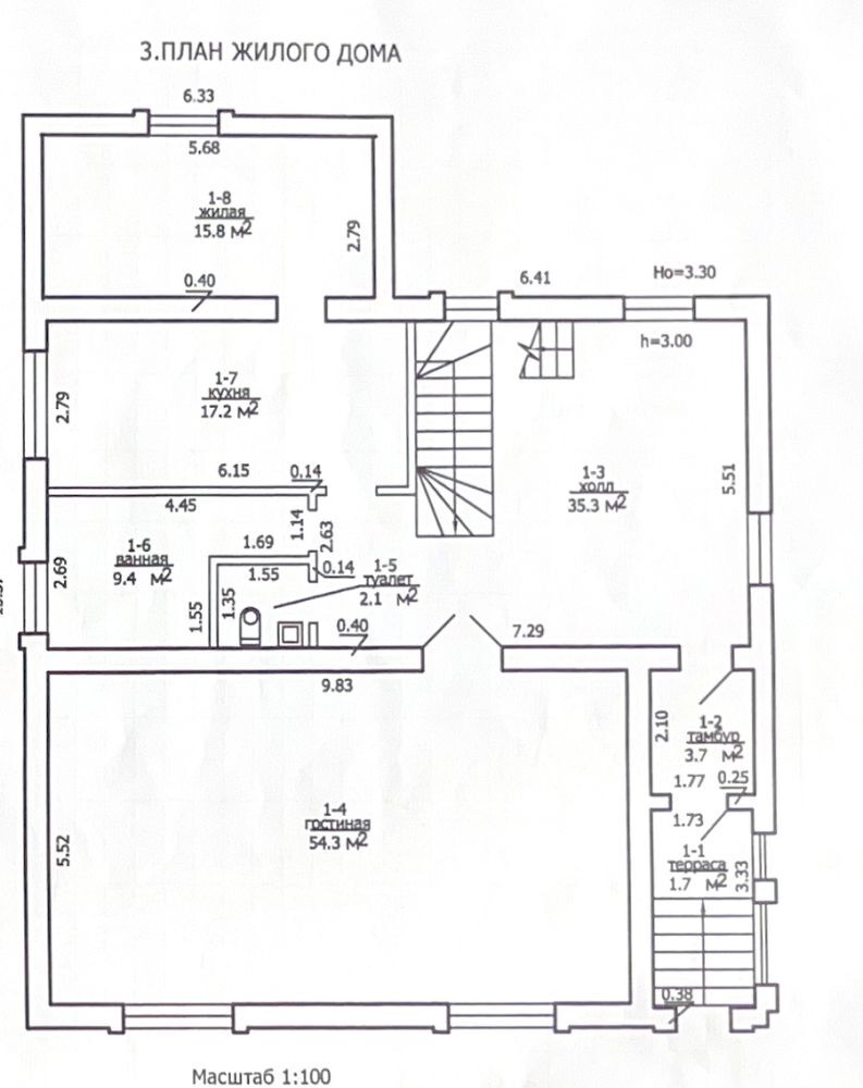
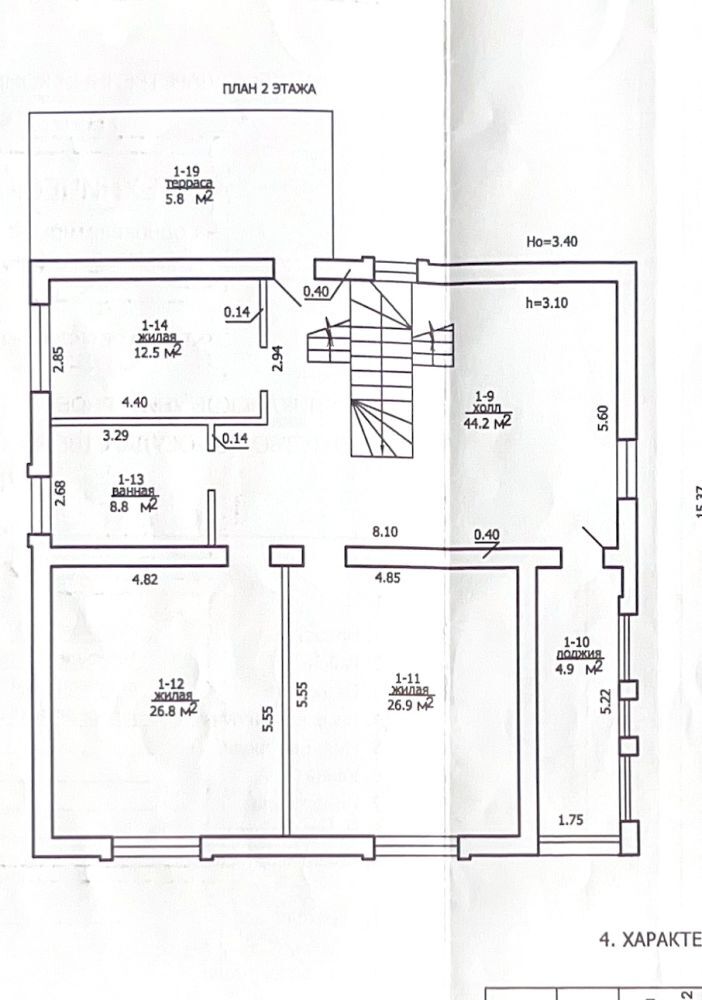
На первом этаже - светлый холл, просторная гостиная для семейных вечеров, кухня с современной техникой и большим холодильником Liebherr, санузел и отдельная жилая комната. Второй этаж — это три спальни, ещё один санузел, уютный холл, открытая лоджия и большая крытая терраса, где можно отдыхать в любое время года. В подвале расположены хозяйственные помещения и топочная, что удобно для хранения и организации быта.


Дом теплый, с высокими потолками, много света. Внутри выполнен современный ремонт из качественных материалов. В санузлах и кухне — водяные тёплые полы.


Земельный участок площадью 15,72 сотки, ровный, широкий и полностью благоустроен: по периметру надёжный забор и живая изгородь, откатные ворота, аккуратные дорожки. Здесь ухоженный газон, плодовые деревья, декоративные кустарники и цветы. Для отдыха предусмотрена беседка с печью-барбекю, а для хозяйства — теплица, сарай-дровница и вольер. Парковка находится прямо на территории.


Коттедж расположен на тихой тупиковой улице рядом с лесом. В 10 минутах ходьбы — остановка общественного транспорта, район «Зелёный бор» с магазинами и современной инфраструктурой. До Минска (Зелёный Луг) — всего 15 минут на машине.


Звоните и приезжайте на просмотр!


 


.

.
договор
Договор № 10/1а от 13.03.2026
ООО «Агентство недвижимости «Уласны дах»
УНП 193467775
Лицензия Министерства юстиции Республики Беларусь № 02240/402 от 22.10.2020 г.
Характеристики и преимущества
Площадь по СНБ/общаяПлощадь по СНБ/общая: -/253.3
Жилая площадьЖилая площадь: 136.3
Площадь кухниПлощадь кухни: 17.2
Год постройки/кап.ремонтаГод постройки/кап.ремонта: 2007/-
Выделенное парковочное местоВыделенное парковочное место: нет
Участок, сотокУчасток, соток: 15.72
Статус земли: частная собственность
Процент готовностиПроцент готовности: 100
Материал стенМатериал стен: Силикатные блоки (-)
Материал крышиМатериал крыши: черепица
ВодаВода: центральный водопровод (-)
КанализацияКанализация: центральная
ЭлектроснабжениеЭлектроснабжение: есть
ОтоплениеОтопление: отопление на газу
ГазГаз: есть
Условия продажи: Аренда
Возможен торг: Да
Возможна продажа частямиВозможна продажа частями: Нет
Валюта цены: USD
Продавайте с нами квартиры
по выгодной цене
Этот сайт использует файлы cookie, чтобы сделать его максимально удобным для Вас. Нажимая «Принять все», Вы соглашаетесь на использование нами файлов cookie. При нажатии «Отклонить все» Вы отказываетесь от использования аналитических файлов cookie. С Политикой обработки файлов cookie можно ознакомиться по ссылке.