пн-пт 9:30-18:00, сб-вск - выходной
+375447940409
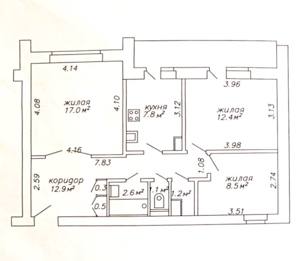
Трехкомнатная квартира в центре
Цена объекта:
139 500 $
395 176 BYN
Цена за м²:
2 051 $
5 811 BYN
ваш агент
Юлия Терешкова
Юлия Терешкова
описание

✔️Трехкомнатная квартира в центре по проспекту Победителей дом 53 корус 1, рядом с Парком Победы и Комсомольским озером.


❗ Лучшая цена и лучшее предложение в районе.


Площадь квартиры по СНБ 68 м, общая площадь 64,3м,  жилая 37,9м,  кухня 7,8м. Три раздельные комнаты, огромная лоджия, тамбур на 2 квартиры.


Расположение прекрасное:



- В центре:  прямой транспорт до станций метро «Немига» или пешком 20 минут,  до метро «Молодежная» 15 минут пешком;
- В шаговой доступности торговые центры  (ТЦ Галерея), набережная р. Свислочь, парк Победы.  Рядом ТЦ Palazzo, Корона Замок;
- Пешком 5 минуты до гимназии, музыкального колледжа им. Глинки и две престижные школы. Рядом детские садики на выбор, бассейн, стоматология, аптека, кофейни и т.п.


✔️Очень высокий первый этаж (на уровне второго), чистая , светлая квартира готова к проживанию. 


✔️ Приглашаем на просмотр, мы открыты к диалогу!


Поможем продать Вашу квартиру для покупки этого варианта.


.
договор
Договор № 185/1 от 17.03.2026
ООО «Агентство недвижимости «Уласны дах»
УНП 193467775
Лицензия Министерства юстиции Республики Беларусь № 02240/402 от 22.10.2020 г.
Характеристики и преимущества
Число комнатЧисло комнат: 3-комнатная квартира
Раздельных комнатРаздельных комнат: 3
ЭтажЭтаж: 1/12
Тип домаТип дома: кирпичный
Площадь по СНБ/общаяПлощадь по СНБ/общая: 68/64.3
Жилая площадьЖилая площадь: 37.9
Площадь кухниПлощадь кухни: 8.5
Площадь балконовПлощадь балконов: 3.7
СанузелСанузел: раздельный
ПолыПолы: паркет
БалконБалкон: лоджия застекленная+вагонка
ПланировкаПланировка: улучшенный проект
СостояниеСостояние: Вторичное жилье
Окна выходятОкна выходят: Во двор, Юг
Год постройки/кап.ремонтаГод постройки/кап.ремонта: 1982/-
Выделенное парковочное местоВыделенное парковочное место: нет
МебельМебель
Встроенные шкафыВстроенные шкафы
Металлическая дверьМеталлическая дверь
СтеклопакетыСтеклопакеты
Счетчики водыСчетчики воды
ДомофонДомофон
Центр городаЦентр города
Готова к проживаниюГотова к проживанию
Зеленая зонаЗеленая зона
Условия продажи: чистая продажа
Возможен торг: Да
Возможна продажа частямиВозможна продажа частями: Нет
Валюта цены: USD
Холодильник: 1
Плита: 1
Продавайте с нами квартиры
по выгодной цене
Этот сайт использует файлы cookie, чтобы сделать его максимально удобным для Вас. Нажимая «Принять все», Вы соглашаетесь на использование нами файлов cookie. При нажатии «Отклонить все» Вы отказываетесь от использования аналитических файлов cookie. С Политикой обработки файлов cookie можно ознакомиться по ссылке.